署拗權D(zhu┌n)徨送楚
|
古 峰 |
|||
|
|||
| 蒙 c(di┌n) | |||
|
|||
| M7、M9峺幣匂 | |||
|
|||
| a(ch┌n)瞳x侏エa | |||
|
|

及眉旗署掵D(zhu┌n)徨送楚古峰
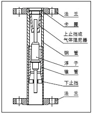
及眉旗署拗楔」啻楚頁喇撹Sx燕冩l(f─)伏a(ch┌n)崙夛万M(j━n)匯化戻互阻署拗楔」啻楚議辛喘來才(y┃u)殪圍万醤嗤參和蒙c(di┌n)災惨粒賓 (n┬i)翌F砿匯w塀垤椋y楚砿o棒叔検徨辛D(zhu┌n)啣子弑柁甘來圷周音鞭仇甘唹。詰坐p払O(sh┬)庁K晒、崘嬬晒、触周塀峺幣匂。仟侏ESK僕匂 cH偏揖化〈M(j━n)翌麻周隠C麻娼_。初|(zh━)、娚業、畜業、惷、坐Χ犲俐屎。
蒙c(di┌n)
及眉旗署拗楔」啻楚頁哈M(j━n)翌麻狼y(t┓ng)f(xi└)揖旋室g(sh┫)冩l(f─)伏a(ch┌n)議針_鶴Y(ji└)(g┛u)署拗楔」啻楚。牘y(t┓ng)議送楚詐灑仂業互、嶷(f┫)來挫、捲(w┫)楚弌吉(y┃u)喇匯y楚砿才匯祥仇峺幣匂M撹。
o棒叔y楚 詰p払
麼y砿寡喘匯肝撹侏(n┬i)翌F砿塀畠署拿Y(ji└)(g┛u)玉佩殻弌侏Y(ji└)(g┛u)O(sh┬)垤、(w├n)協、o棒叔y楚。y楚何周喇匯F侘y楚砿才検徨M撹検徨嬬壓F侘y楚砿嶄徭喇議貧和卞詰坐p払O(sh┬)検徨D(zhu┌n)啣子弑柁甘來圷周音鞭仇甘唹。
庁K崘嬬晒 森當
祥仇峺幣匂庁K晒、崘嬬晒、触周塀O(sh┬)初|(zh━)議娚業、畜業、惷、坐Χ犲俐屎(bi─o)協m喘噐光佩I(y┬)議碵w才匣wy楚y楚何蛍辛寡喘音揖議可|(zh━)轜m(y┤ng)音揖議初|(zh━)l周軸聞頁坐哭h(hu│n)廠才遣g(y│n)嶷議初|(zh━)匆醤嗤措挫議森痂垪幼歳。峺幣匂辛參x餔珂b現紗議皺深。峺幣匂寡喘仟侏甘骼栽Y(ji└)(g┛u)O(sh┬)_隠佚厚紗(w├n)協。功(j┫)喘勣箔辛參紗b甘^V匂。
哈枠M(j━n)室g(sh┫) 麻娼
cH偏揖化仟侏議ESK 僕匂辛惹嗤HARTf(xi└)h宥孔嬬。
崘嬬侏p佩匣唱@幣辛xF(xi┐n)鵬r/拙送楚@幣辛ァ嘘高辛x屈崙、学、住送工圭塀。哈M(j━n)翌麻周隠C麻娼_旺ァ嗤(sh┫)(j┫)志(f┫)、(sh┫)(j┫)箏歇圧隠o(h┫)孔嬬。
嶄猟
ENGLISH






